Adret - Saint-Martin-de-Belleville
Explore a wide range of accommodation in Gap France and within 100 km: from mountain chalets and lakeside campsites to budget hostels, luxury villas and family-friendly hotels. Secure affordable car hire in Gap to reach Lac de Sainte-Marguerite, Gorges de la Méouge, Domaine de Charance and Écrins National Park. Discover nearby towns—Tallard, Sisteron and Embrun—and ski resorts like Orcières Merlette and Les Orres. Compare rates, read real reviews, book flights into Marseille or Grenoblee. Book!
Adret
Saint-Martin-de-Belleville rue st françois
No. of rooms
3
WiFi
Parking
Animal acceptance
We speak
FR
8.2/10
No. of rooms
3
WiFi
Parking
Animal acceptance
We speak
FR
8.2/10
Offering quiet street views, Adret is an accommodation situated in Saint-Martin-de-Belleville, 46 km from Halle Olympique dAlbertville and 18 km from Casino des 3 Vallées Brides les Bains. Featuring mountain and city views, this apartment also comes with free WiFi. Méribel Golf Course is 33 km away and Le Grand Domaine is 36 km from the apartment.
The units come with tiled floors and feature a fully equipped kitchen with a dishwasher, a flat-screen TV with satellite channels, and a private bathroom with shower and a hair dryer. An oven, a microwave and toaster are also available, as well as a coffee machine and a kettle. The units are equipped with heating facilities.
A minimarket is available at the apartment.
Skiing, cycling and walking tours are possible within the area, and the apartment offers ski storage space.
Chambéry-Savoie Airport is 104 km from the property.
The hotel day starts from hour 17:30 and ends at 09:30.
Please inform in advance of your expected arrival time. You can use the Special Requests box when booking, or contact the property directly with the contact details provided in your confirmation.
This property will not accommodate hen, stag or similar parties.
Managed by a private host
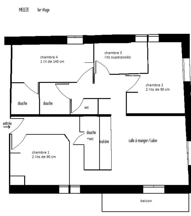
Apartment with Balcony. This apartments special feature is the fireplace. This spacious apartment comprises 1 living room, 4 separate bedrooms and 3 bathrooms with a shower and a hairdryer. Meals can be prepared in the kitchen, which comes with a stovetop, a refrigerator, a dishwasher and kitchenware. Featuring a balcony with mountain views, this apartment also provides a washing machine and a flat-screen TV with cable channels. The unit offers 7 beds. ;
Apartment - Ground Floor. Featuring a private entrance, this spacious apartment also consists of 1 living room, 4 separate bedrooms and 3 bathrooms with a shower. The fully equipped kitchen features a stovetop, a refrigerator, a dishwasher and kitchenware. The apartment provides a flat-screen TV with cable channels, a washing machine, a tea and coffee maker, a seating area as well as city views. The unit offers 6 beds. ;
Apartment with Balcony. This spacious apartment comprises 1 living room, 4 separate bedrooms and 3 bathrooms with a shower and a hairdryer. Meals can be prepared in the kitchen, which comes with a stovetop, a refrigerator, a dishwasher and kitchenware. Featuring a balcony with mountain views, this apartment also provides a tea and coffee maker and a flat-screen TV with cable channels. The unit offers 7 beds.
License number: 73257001429DP
Skiing
Use of cleaning chemicals that are effective against Coronavirus
Tennis equipmentadditional charge
Guests have the option to cancel any cleaning services for their accommodation during their stay
Physical distancing rules followed
WiFi
Badminton equipmentadditional charge
Ski storage
Horse ridingoffsiteadditional charge
Physical distancing in dining areas
Contactless check-in/check-out
Mini golfadditional charge
Fishingoffsiteadditional charge
Ski schooladditional charge
Pets allowed
Bowlingoffsiteadditional charge
Invoice provided
Hikingoffsite
Lockers
Shared stationery such as printed menus, magazines, pens, and paper removed
Staff follow all safety protocols as directed by local authorities
Free WiFi
Canoeingoffsiteadditional charge
Walking tours
Free parking
Archeryoffsiteadditional charge
Table tennisadditional charge
Smoke alarms
Tennis courtoffsiteadditional charge
Designated smoking area
Internet services
Bike tours
Cyclingoffsite
Heating
Pub crawlsadditional charge
Parking
Guest accommodation is disinfected between stays
Street parking
Minimarket on site
Key access
Linens, towels and laundry washed in accordance with local authority guidelines
Fire extinguishers
